Multilocale in vendita

Andria, Via XXIV Maggio - Centro Stazione Ospedale
€ 138.000
100 Mq 100 Mq
1 bagno 1 bagno

Multilocale in vendita

Andria, Via XXIV Maggio - Centro Stazione Ospedale

Descrizione annuncio

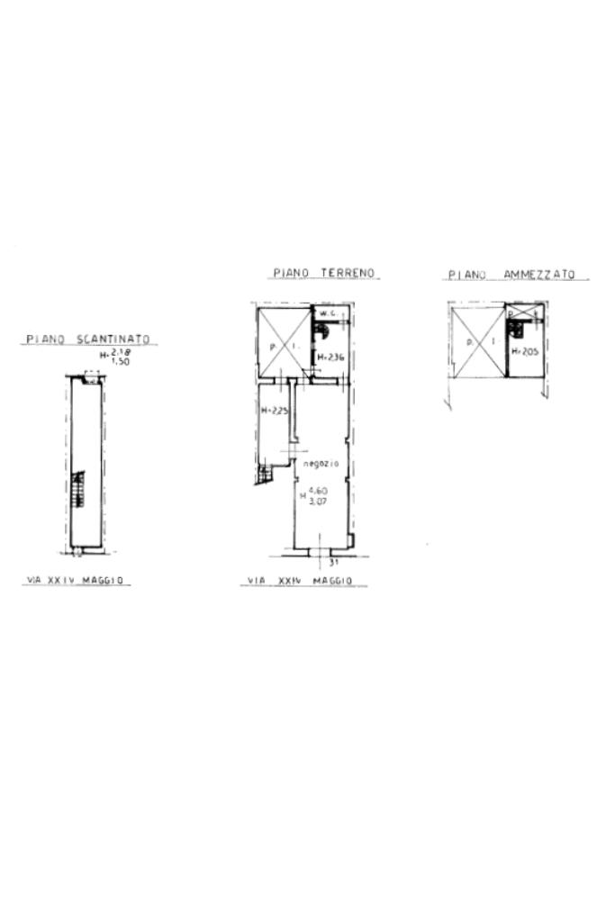
ANDRIA - In Zona Centrale nelle prime vicinanze dell' ospedale e della stazione ferroviaria disponiamo di un locale commerciale C/1 dotato ovviamente di servizi igienici, con cortile retrostante di proprietà e scantinato. LIBERO.

Ogni agenzia ha un proprio titolare ed e' autonoma - Le presenti informazioni non costituiscono elemento contrattuale.

Si effettuano valutazioni gratuite.

Inoltre un consulente del credito del gruppo KIRON PARTNER (Kiron è un marchio che contraddistingue i punti vendita della società di mediazione creditizia del Gruppo Tecnocasa) sarà a vostra disposizione presso la nostra sede, previo appuntamento.

Se vuoi essere informato sulle nostre novità iscriviti alla nostra newsletter sul sito oppure scarica l'applicazione per Iphone/google android.

Le nostre proposte sono presenti anche sulla rivista digitale. (scaricala gratis da 'apple store' o da 'google play')

Lo STUDIO BORGOVILLA SAS. è un'agenzia affiliata del GRUPPO TECNOCASA operante sul territorio nazionale con circa 2367 punti vendita in franchising che operano nell'intermediazione immobiliare.
Il GRUPPO TECNOCASA è presente anche in:
- SPAGNA
- UNGHERIA
- MESSICO
- REP. S. MARINO
- POLONIA
- FRANCIA
- REPUBBLICA CECA
- ROMANIA
- TUNISIA
- STATI UNITI - FLORIDA
- MAROCCO

Mostra tutto

Nelle vicinanze

Trasporto pubblico Trasporto pubblico
Andria
Andria
370 m
Trasporto pubblico
1,0 Km
Trasporto pubblico
130 m
Fermata Stazione Bari-Nord
Fermata Stazione Bari-Nord
350 m
Ricariche auto elettriche Ricariche auto elettriche
Eneldrive Tribunale di Andria
280 m
Eneldrive Stazione di Andria
340 m
Eneldrive Viale Roma
530 m
Eneldrive Savarese
1,6 Km
Enel PAN Andria ADS TotalErg
1,6 Km
Scuole Scuole
Scuola Media Padre Nicolò Vaccina
160 m
Liceo Statale Carlo Troya
340 m
Scuola Materna Saccotelli
430 m
ITIS Sen. O. Jannuzzi
500 m
Scuola Materna Lotti
520 m
Farmacia Farmacia
Farmacia
810 m
Faramacia Vitti
920 m
Del Monaco
970 m
Farmacia A. Trione
1,8 Km
Ospedali Ospedali
Pronto Soccorso Ospedale Lorenzo Bonomo
150 m
Ospedale Lorenzo Bonomo
190 m
Guardia Medica
630 m
Ufficio Igiene
940 m
Ospedali
1,2 Km
Supermercati Supermercati
Supermercati Dok
480 m
WMark
550 m
Dok
940 m
Ipercoop Mongolfiera
2,0 Km
Ipercoop
2,0 Km
Negozi Negozi
Intimo Di Ruvo
300 m
Voglia di Pane
570 m
Imbriani
750 m
Sgaramella Rag. Francesco
1,2 Km
Negozi
1,2 Km
Bar Bar
Nessie dei Pini
190 m
Follow Me - Fashon Café
380 m
Bar De Lucia
810 m
Officina del Gelato
900 m
bar Venere
1,6 Km
Ristoranti Ristoranti
Poldo
520 m
Il Vecchio Forno
560 m
MàMà
630 m
The Old Brewery
730 m
De La Poste Locanda
790 m
Mostra tutto

Caratteristiche

Rif.:
61170581
Piano:
Terra
Arredamento:
Assente
Condizionamento:
Assente
Ascensore:
No
Riscaldamento:
Assente
Mostra tutto
Prezzo Prezzo
€ 138.000
Rata mutuo Rata mutuo
€ 656 / mese
Proponi il tuo prezzoProponi il tuo prezzo

Altre caratteristiche

Descrizione dei locali
Bagno Con Finestra

Classe Energetica

G
G
G
G
G
G
G
G
G
EP globale non rinnovabile:
101.00 kW h/m² anno
EP globale rinnovabile:
101.00 kW h/m² anno
EP invernale del fabbricato:
EP estiva del fabbricato:
Anno di costruzione:
1970
Riscaldamento:
Assente

Ti interessa visionare l'immobile?

Fissa un appuntamento  Fissa un appuntamento

Richiedi informazioni

Clicca su Leggi per aprire l'informativa
* Questi campi sono obbligatori

Calcola il tuo mutuo

Semplice e senza impegno
Anticipo

( % )
Mutuo

( % )

pochi semplici passi

inserisci i tuoi dati
Questionario completato
Grazie per aver richiesto un appuntamento senza impegno con un nostro Consulente del Credito e Assicurativo.

Hai inserito correttamente tutti i dati necessari e a breve riceverai una e-mail con un link da convalidare per inviare i tuoi dati.
Affiliato
Studio Borgovilla Sas
Via Canosa, 153 76121 Barletta (BT)

Il nostro staff


  • Giuseppe Salice
    Affiliato

  • Barbara Dicorato
    Collaboratrice

  • Giuseppina Manosperti
    Collaboratrice

  • Marianna Pedico
    Coordinatrice
Via Canosa, 153 76121 Barletta (BT)
Zona: Barletta - Borgovilla
Mostra su mappa
Orari: lunedi - venerdi 08.30 - 13.00/16.00 - 21.00; sabato 09.00 - 13.00/ previo appuntamento.
Affiliato
Studio Borgovilla Sas
Via Canosa, 153 76121 Barletta (BT)

2026 Tecnocasa Franchising S.p.A. - P. IVA 08365160152 - Via Monte Bianco 60/A 20089 Rozzano (MI). Ogni agenzia ha un proprio titolare ed è autonoma. Privacy policy | Policy utilizzo | Cookie policy